Quadrilocale in vendita

Acqui Terme, Via Giovanni Amendola
€ 68.000
4 locali 4 locali
90 Mq 90 Mq
2 bagni 2 bagni

Quadrilocale in vendita

Acqui Terme, Via Giovanni Amendola

Descrizione annuncio

In posizione comoda ai servizi e a pochi passi dalla zona pedonale di Acqui Terme, proponiamo un ampio appartamento.


L'alloggio si presenta come soluzione ideale per famiglie numerose, genitori e figli.

Composizione:

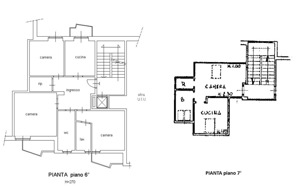
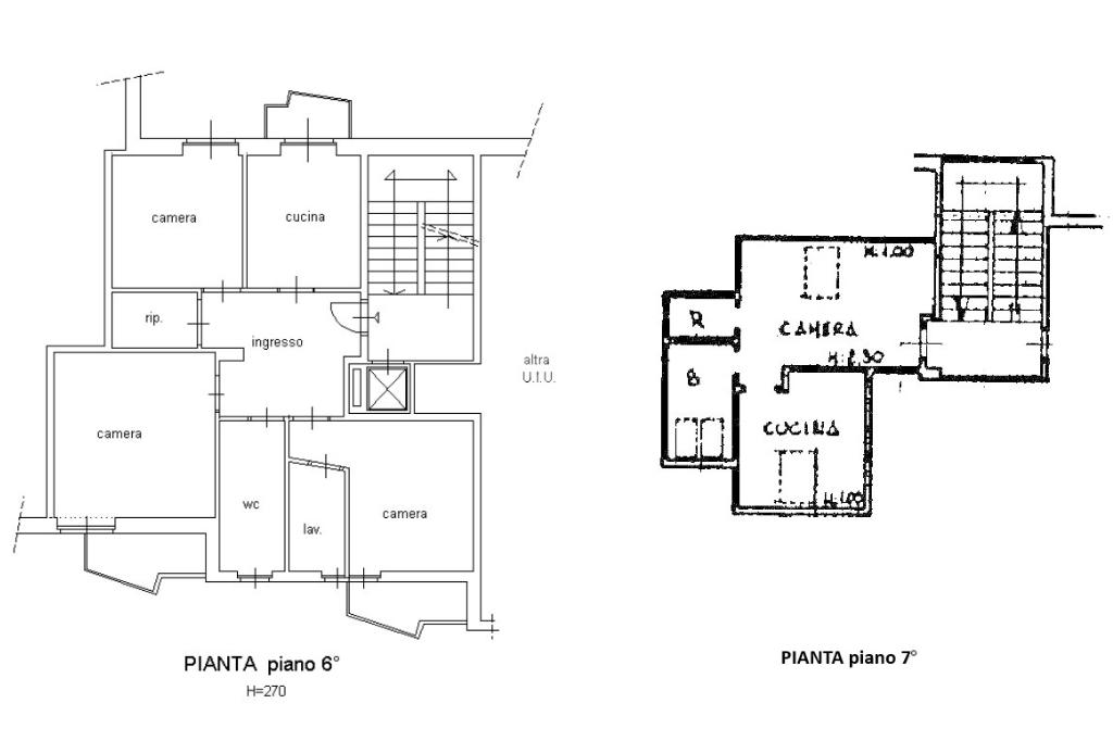
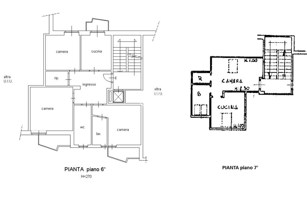
Appartamento: ingresso, due camere di cui una con bagno privato e balcone, soggiorno con balcone, cucina abitabile anche essa con balcone, ripostiglio e bagno.

Piano mansardato: ingresso living su ampia camera, cucina, ripostiglio e bagno.

Piano interrato: cantina al piano seminterrato

L’immobile gode di ottima luminosità, spazi funzionali e ampie possibilità di personalizzazione.

Possibilità di acquistare a parte un ampio box auto di circa 23 mq situato al piano terra dello stesso condominio.

Presente inoltre, come da foto, la possibilità di acquistare la mansarda presente al piano superiore, gli alloggi comunicano attraverso una scala interna, è però possibile mantenere le due unità separate ciascuna con proprio ingresso indipendente dal vano scala condominiale.
Mansarda così composta: ingresso living su ampia camera, cucina, ripostiglio e bagno.

Prezzo richiesto 15.000€

Ideale per chi desidera abitare e affittare un piano in modo indipendente.

Mostra tutto

Nelle vicinanze

Trasporto pubblico Trasporto pubblico
Acqui Terme
Acqui Terme
940 m
Autolinee Acquesi Srl
Autolinee Acquesi Srl
250 m
Buonarroti
Buonarroti
280 m
Ricariche auto elettriche Ricariche auto elettriche
Acqui Terme Ferraris | Enel X
210 m
Acqui Terme S. Guido | Enel X
650 m
Acqui Terme Matteotti | Enel X
740 m
Acqui Terme Acquedotto Romano | EnelX
1,6 Km
Lidl Acqui Terme
1,7 Km
Scuole Scuole
Scuola media
570 m
Enaip
650 m
Centro di formazione professionale Alberghiero
700 m
Istituto Superiore Parodi
830 m
Scuole
1,3 Km
Farmacia Farmacia
Farmacia Dr Cignoli Teresio
410 m
Farmacia Albertini di Dott. Enzo & C. Snc
440 m
Alla Bollente di Franchiolo Paolaantonia Rosa Maria Snc
530 m
Farmacia Centrale
590 m
Farmacia Delle Terme Di Malò Mario e Silvia Snc
640 m
Ospedali Ospedali
Casa di cura Villa Igea
170 m
Ospedale Monsignor Giovanni Galliano
1,4 Km
Supermercati Supermercati
Galassia
150 m
Gulliver Alfi Srl
710 m
Penny Market
1,2 Km
Conad
1,3 Km
EuroSpin
1,4 Km
Negozi Negozi
Pane & Canapa
120 m
Bottega del Pane & Vino
180 m
Donnastory
420 m
Panificio Spatola
490 m
Canton d'la pôsta fresca
510 m
Bar Bar
Caffetteria/Tabacchi Amendola
110 m
Bar Diamante
240 m
Gusta
450 m
Caffè dei Mercanti
500 m
Dotto 1827
560 m
Ristoranti Ristoranti
Trattoria La Farinata
70 m
Gastronomia Miraggio
430 m
San Guido
470 m
Vecchio Borgo
520 m
Il Ciarlocco
530 m
Mostra tutto

Caratteristiche

Rif.:
61136659
Piano:
6 di 7 con ascensore (Piano alto)
Box:
1
Balconi:
3
Camere da letto:
3
Arredamento:
Assente
Mostra tutto
Prezzo Prezzo
€ 68.000
Prezzo box Prezzo box
€ 20.000
Rata mutuo Rata mutuo
€ 323 / mese
Spese annue Spese annue
€ 0
Proponi il tuo prezzoProponi il tuo prezzo
Immobile valutato con T·Valuta

Classe Energetica

E
E
E
E
E
E
E
E
E
EP globale non rinnovabile:
173.90 kW h/m² anno
EP globale rinnovabile:
0.53 kW h/m² anno
EP invernale del fabbricato:
EP estiva del fabbricato:
Anno di costruzione:
1973
Riscaldamento:
Centralizzato
Tipo impianto:
A radiatori
Tipo alimentazione:
Metano

Ti interessa visionare l'immobile?

Fissa un appuntamento  Fissa un appuntamento

Richiedi informazioni

Clicca su Leggi per aprire l'informativa
* Questi campi sono obbligatori

Calcola il tuo mutuo

Semplice e senza impegno
Anticipo

( % )
Mutuo

( % )

pochi semplici passi

inserisci i tuoi dati
Questionario completato
Grazie per aver richiesto un appuntamento senza impegno con un nostro Consulente del Credito e Assicurativo.

Hai inserito correttamente tutti i dati necessari e a breve riceverai una e-mail con un link da convalidare per inviare i tuoi dati.
Affiliato
Studio Monteverde Sas
Via Monteverde, 12 15011 Acqui Terme (AL)

Il nostro staff


  • Mauro Panebianco
    Affiliato

  • Riccardo Barbero
    Collaboratore

  • Rachele Caffa
    Coordinatrice

  • Andrea Luigi Lingeri
    Collaboratore
Via Monteverde, 12 15011 Acqui Terme (AL)
Zona: Acqui Terme e dintorni
Mostra su mappa
Orari: Dalle 9:00 alle 12:30, dalle 15:30 alle 19:30. Sabato chiusura alle 18:00
Affiliato
Studio Monteverde Sas
Via Monteverde, 12 15011 Acqui Terme (AL)

2026 Tecnocasa Franchising S.p.A. - P. IVA 08365160152 - Via Monte Bianco 60/A 20089 Rozzano (MI). Ogni agenzia ha un proprio titolare ed è autonoma. Privacy policy | Policy utilizzo | Cookie policy