Quadrilocale in vendita

Acqui Terme, Via Nizza
€ 55.000
4 locali 4 locali
90 Mq 90 Mq
1 bagno 1 bagno

Quadrilocale in vendita

Acqui Terme, Via Nizza

Descrizione annuncio

Acqui Terme.

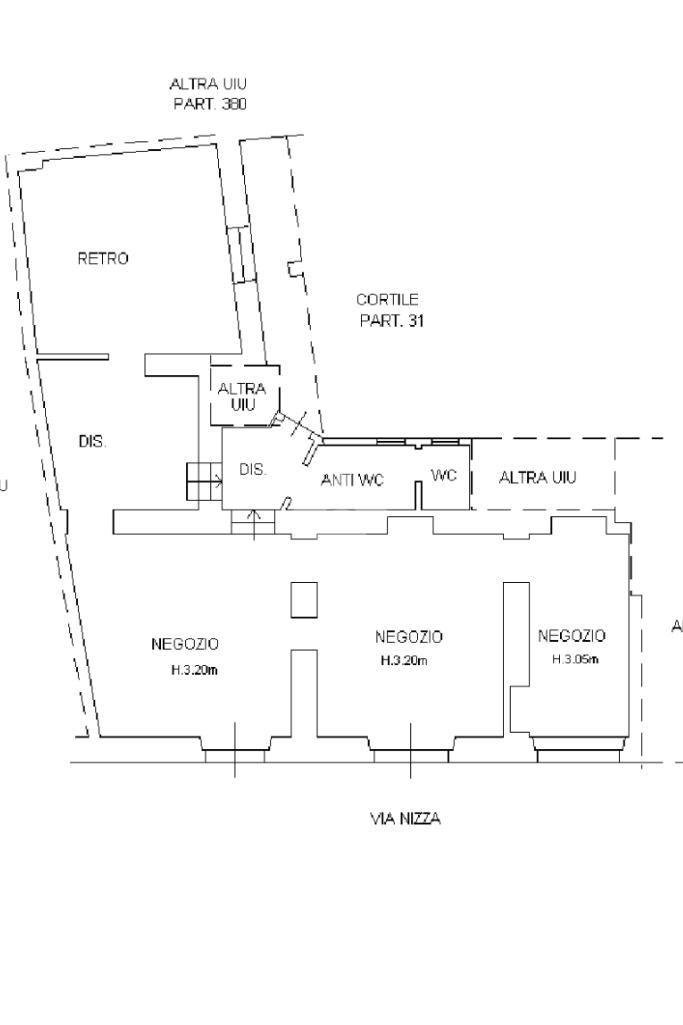
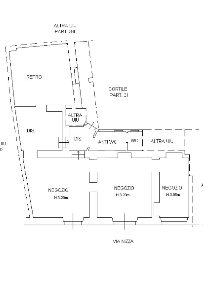
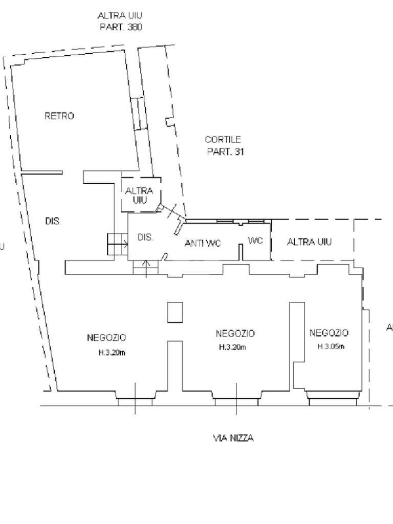
Si propone in vendita un immobile sito al piano terra adibito attualmente a locale commerciale ma con possibilità di creare un grazioso appartamento comodo ai servizi principali.

Come mostrato in foto è possibile realizzare un appartamento composto da cucina abitabile, stanza adibita a sala ma versatile, camera da letto matrimonale, una cameretta singola ed infine un bagno.
L'immobile però non presenta solo questa personalizzazione, è infatti intercambiabile.

Ideale come abitazione principale ma anche per investimento e uso BnB.

Mostra tutto

Nelle vicinanze

Trasporto pubblico Trasporto pubblico
Acqui Terme
Acqui Terme
580 m
Stazione di Visone
Stazione di Visone
2,8 Km
Corso Roma
Corso Roma
180 m
Piazza S.Guido
Piazza S.Guido
200 m
Ricariche auto elettriche Ricariche auto elettriche
Acqui Terme S. Guido | Enel X
260 m
Acqui Terme Ferraris | Enel X
440 m
Acqui Terme Matteotti | Enel X
590 m
Acqui Terme Acquedotto Romano | EnelX
1,4 Km
Lidl Acqui Terme
1,7 Km
Scuole Scuole
Istituto Superiore Parodi
440 m
Scuola media
790 m
Scuole
990 m
Enaip
1,0 Km
Centro di formazione professionale Alberghiero
1,1 Km
Farmacia Farmacia
Farmacia Albertini di Dott. Enzo & C. Snc
120 m
Farmacia Dr Cignoli Teresio
250 m
Alla Bollente di Franchiolo Paolaantonia Rosa Maria Snc
280 m
Farmacia Centrale
340 m
Farmacia Delle Terme Di Malò Mario e Silvia Snc
450 m
Ospedali Ospedali
Casa di cura Villa Igea
500 m
Ospedale Monsignor Giovanni Galliano
1,7 Km
Supermercati Supermercati
Galassia
500 m
Gulliver Alfi Srl
1,0 Km
EuroSpin
1,0 Km
Conad
1,1 Km
Penny Market
1,4 Km
Negozi Negozi
Panificio Spatola
150 m
Canton d'la pôsta fresca
160 m
Donnastory
200 m
Federica B.
300 m
Pane & Canapa
340 m
Bar Bar
Gusta
140 m
Caffè dei Mercanti
240 m
Dotto 1827
300 m
Caffetteria/Tabacchi Amendola
340 m
Piccolo
430 m
Ristoranti Ristoranti
San Guido
100 m
Gastronomia Miraggio
220 m
Vecchio Borgo
250 m
Trattoria La Farinata
400 m
Il Ciarlocco
470 m
Mostra tutto

Caratteristiche

Rif.:
61139511
Piano:
Terra di 3
Totale piani:
3
Camere da letto:
2
Arredamento:
Assente
Condizionamento:
Autonomo
Mostra tutto
Prezzo Prezzo
€ 55.000
Rata mutuo Rata mutuo
€ 261 / mese
Proponi il tuo prezzoProponi il tuo prezzo

Classe Energetica

A1
A1
A1
A1
A1
A1
A1
A1
A1
EP globale non rinnovabile:
182.18 kW h/m² anno
EP globale rinnovabile:
0.00 kW h/m² anno
EP invernale del fabbricato:
EP estiva del fabbricato:
Anno di costruzione:
1970
Riscaldamento:
Autonomo
Tipo impianto:
Ad aria
Tipo alimentazione:
Aria

Ti interessa visionare l'immobile?

Fissa un appuntamento  Fissa un appuntamento

Richiedi informazioni

Clicca su Leggi per aprire l'informativa
* Questi campi sono obbligatori

Calcola il tuo mutuo

Semplice e senza impegno
Anticipo

( % )
Mutuo

( % )

pochi semplici passi

inserisci i tuoi dati
Questionario completato
Grazie per aver richiesto un appuntamento senza impegno con un nostro Consulente del Credito e Assicurativo.

Hai inserito correttamente tutti i dati necessari e a breve riceverai una e-mail con un link da convalidare per inviare i tuoi dati.
Affiliato
Studio Monteverde Sas
Via Monteverde, 12 15011 Acqui Terme (AL)

Il nostro staff


  • Mauro Panebianco
    Affiliato

  • Riccardo Barbero
    Collaboratore

  • Rachele Caffa
    Coordinatrice

  • Andrea Luigi Lingeri
    Collaboratore
Via Monteverde, 12 15011 Acqui Terme (AL)
Zona: Acqui Terme e dintorni
Mostra su mappa
Orari: Dalle 9:00 alle 12:30, dalle 15:30 alle 19:30. Sabato chiusura alle 18:00
Affiliato
Studio Monteverde Sas
Via Monteverde, 12 15011 Acqui Terme (AL)

2026 Tecnocasa Franchising S.p.A. - P. IVA 08365160152 - Via Monte Bianco 60/A 20089 Rozzano (MI). Ogni agenzia ha un proprio titolare ed è autonoma. Privacy policy | Policy utilizzo | Cookie policy