Casa indipendente in vendita

Acqui Terme, Stradale Alessandria
€ 220.000
10 locali 10 locali
258 Mq 258 Mq
3 bagni 3 bagni

Casa indipendente in vendita

Acqui Terme, Stradale Alessandria

Descrizione annuncio

Proponiamo in vendita una casa indipendente bifamiliare, situata in una posizione comoda, a pochi minuti di automobile dal centro di Acqui Terme.

L’immobile è stato oggetto di recenti interventi di ristrutturazione esterna:

Tetto rifatto nel 2020

Facciata rinnovata nel 2023

Impianto di scarico, tubazioni e fossa biologica sostituiti nel 2021

Cancello d’ingresso automatico

La proprietà è circondata da circa 3.000 m² di terreno pianeggiante, con pozzo ideale per l’irrigazione dell’orto e del giardino.

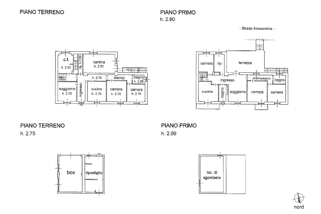
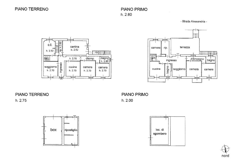
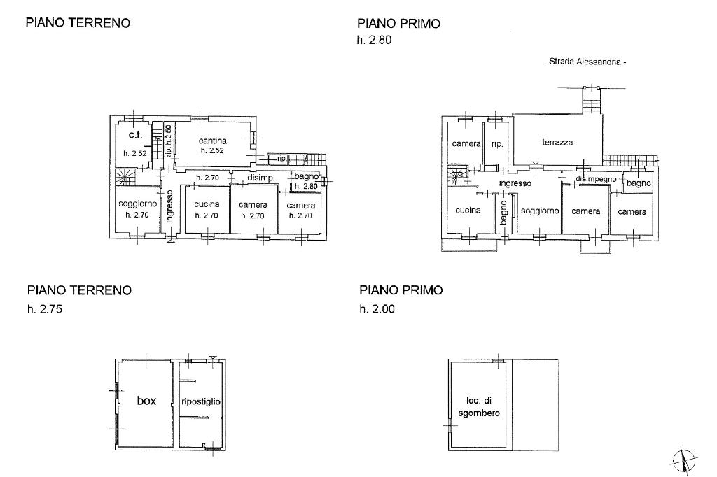
L’abitazione si sviluppa su due livelli, suddivisi in due appartamenti indipendenti, attualmente collegati da una scala interna, ma con ingressi separati.

Piano Terra

L’alloggio al piano terra è composto da cucina abitabile, un soggiorno , due camere da letto e il bagno.

Completano il livello una cantina e il locale caldaia/lavanderia, con caldaia a condensazione installata nel 2020.

Primo Piano

L’appartamento al primo piano si apre su un luminoso soggiorno con pavimento in parquet. La cucina abitabile si affaccia su un balcone con vista aperta. La zona giorno comprende inoltre un bagno con vasca e due camere adiacenti, ideali come studio o camere aggiuntive.
Un disimpegno conduce alla zona notte, composta da due camere da letto di cui una con balcone e da un secondo bagno con doccia.

Pertinenze

Di fronte all’abitazione si trova un ampio box auto con capacità per tre vetture, corredato da locali di deposito e magazzino.

Mostra tutto

Nelle vicinanze

Trasporto pubblico Trasporto pubblico
Acqui Terme
Acqui Terme
1,5 Km
Stazione di Visone
Stazione di Visone
2,3 Km
Trasporto pubblico
1,3 Km
Piazza S.Guido
Piazza S.Guido
1,4 Km
Ricariche auto elettriche Ricariche auto elettriche
Acqui Terme S. Guido | Enel X
1,4 Km
Acqui Terme Ferraris | Enel X
1,8 Km
Acqui Terme Matteotti | Enel X
1,9 Km
Acqui Terme Acquedotto Romano | EnelX
2,4 Km
Villa Giarvino
2,7 Km
Scuole Scuole
Istituto Superiore Parodi
1,3 Km
Scuole
1,9 Km
Enaip
2,0 Km
Centro di formazione professionale Alberghiero
2,1 Km
Scuola media
2,2 Km
Farmacia Farmacia
Farmacia Albertini di Dott. Enzo & C. Snc
1,5 Km
Alla Bollente di Franchiolo Paolaantonia Rosa Maria Snc
1,6 Km
Farmacia Dr Cignoli Teresio
1,7 Km
Farmacia Centrale
1,7 Km
Farmacia Delle Terme Di Malò Mario e Silvia Snc
1,8 Km
Ospedali Ospedali
Casa di cura Villa Igea
1,6 Km
Supermercati Supermercati
EuroSpin
1,4 Km
Galassia
1,8 Km
Conad
2,1 Km
Gulliver Alfi Srl
2,4 Km
Penny Market
2,8 Km
Negozi Negozi
Canton d'la pôsta fresca
1,5 Km
Panificio Spatola
1,5 Km
Donnastory
1,6 Km
Federica B.
1,7 Km
Pane & Canapa
1,7 Km
Bar Bar
Palladium
920 m
Gusta
1,5 Km
Caffè dei Mercanti
1,6 Km
Dotto 1827
1,7 Km
Caffetteria/Tabacchi Amendola
1,7 Km
Ristoranti Ristoranti
San Guido
1,5 Km
Vecchio Borgo
1,6 Km
Gastronomia Miraggio
1,6 Km
Trattoria La Farinata
1,7 Km
Le Fontane
1,8 Km
Mostra tutto

Caratteristiche

Rif.:
61137980
Piano:
Terra con giardino di 2
Totale piani:
2
Box:
1
Posti auto:
1
Balconi:
2
Mostra tutto
Prezzo Prezzo
€ 220.000
Rata mutuo Rata mutuo
€ 1.045 / mese
Spese annue Spese annue
€ 0
Proponi il tuo prezzoProponi il tuo prezzo

Classe Energetica

F
F
F
F
F
F
F
F
F
EP globale non rinnovabile:
263.81 kW h/m² anno
EP globale rinnovabile:
0.50 kW h/m² anno
EP invernale del fabbricato:
EP estiva del fabbricato:
Anno di costruzione:
1940
Riscaldamento:
Autonomo
Tipo impianto:
A radiatori
Tipo alimentazione:
Gasolio

Ti interessa visionare l'immobile?

Fissa un appuntamento  Fissa un appuntamento

Richiedi informazioni

Clicca su Leggi per aprire l'informativa
* Questi campi sono obbligatori

Calcola il tuo mutuo

Semplice e senza impegno
Anticipo

( % )
Mutuo

( % )

pochi semplici passi

inserisci i tuoi dati
Questionario completato
Grazie per aver richiesto un appuntamento senza impegno con un nostro Consulente del Credito e Assicurativo.

Hai inserito correttamente tutti i dati necessari e a breve riceverai una e-mail con un link da convalidare per inviare i tuoi dati.
Affiliato
Studio Monteverde Sas
Via Monteverde, 12 15011 Acqui Terme (AL)

Il nostro staff


  • Mauro Panebianco
    Affiliato

  • Riccardo Barbero
    Collaboratore

  • Rachele Caffa
    Coordinatrice

  • Andrea Luigi Lingeri
    Collaboratore
Via Monteverde, 12 15011 Acqui Terme (AL)
Zona: Acqui Terme e dintorni
Mostra su mappa
Orari: Dalle 9:00 alle 12:30, dalle 15:30 alle 19:30. Sabato chiusura alle 18:00
Affiliato
Studio Monteverde Sas
Via Monteverde, 12 15011 Acqui Terme (AL)

2026 Tecnocasa Franchising S.p.A. - P. IVA 08365160152 - Via Monte Bianco 60/A 20089 Rozzano (MI). Ogni agenzia ha un proprio titolare ed è autonoma. Privacy policy | Policy utilizzo | Cookie policy