Bifamiliare in vendita

Calamandrana, Frazione V. San Giovanni
€ 269.000
7 locali 7 locali
305 Mq 305 Mq
2 bagni 2 bagni

Bifamiliare in vendita

Calamandrana, Frazione V. San Giovanni

Descrizione annuncio

Nel cuore delle colline del Monferrato, a pochi chilometri da Nizza Monferrato e immersa in un paesaggio naturale di rara bellezza, sorge Calamandrana, un affascinante borgo conosciuto per i suoi vigneti, i panorami aperti e la qualità della vita autentica e rilassata. Qui la tranquillità della campagna incontra la comodità dei servizi, rendendo questo paese il luogo ideale per chi desidera vivere immerso nel verde senza rinunciare al comfort.

In questo contesto suggestivo proponiamo una villetta indipendente con splendida vista panoramica, circondata da oltre 5.400 metri quadrati di terreno, perfetta per chi sogna spazio, privacy e natura.

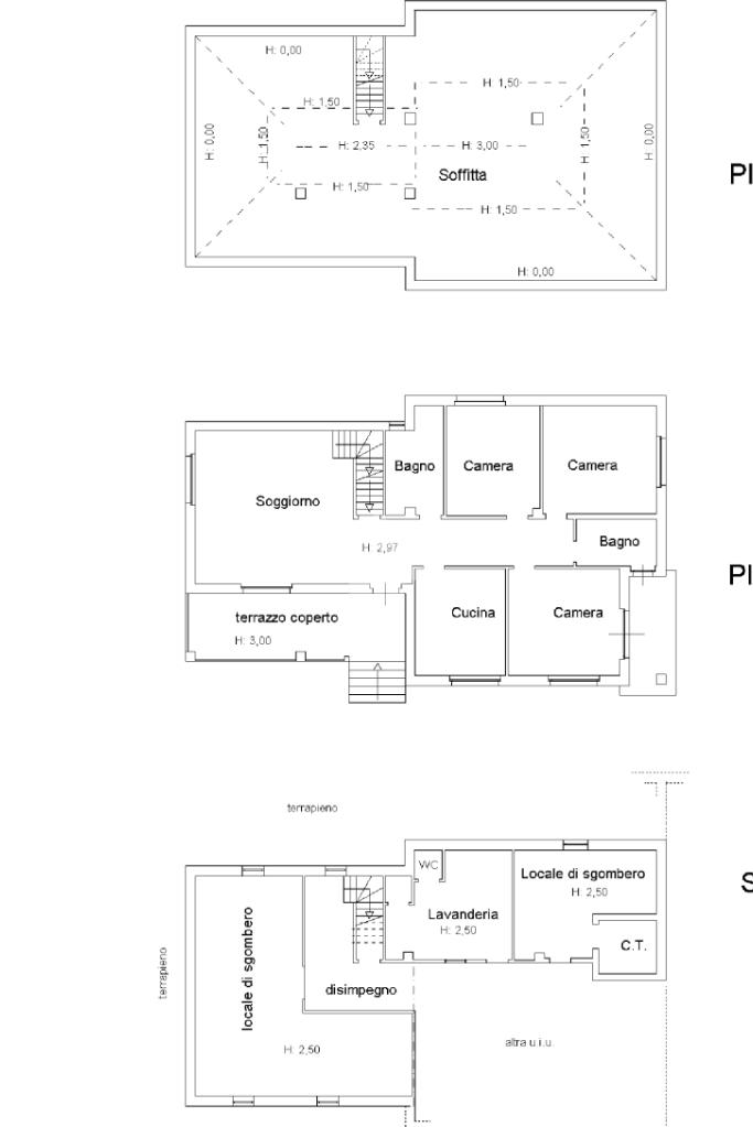
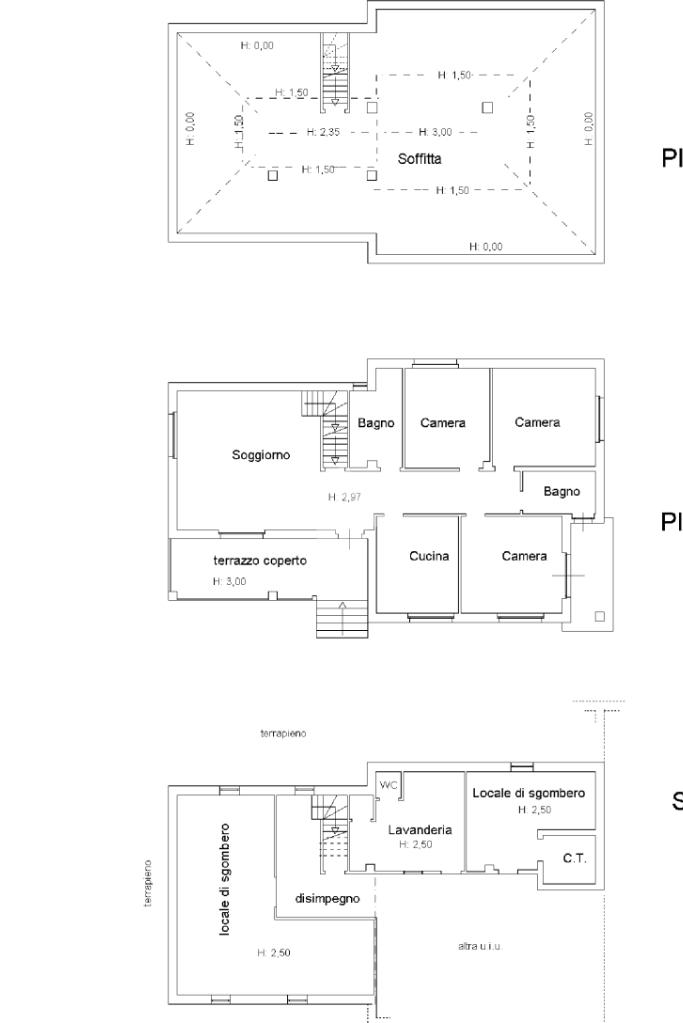
L’abitazione principale si sviluppa tutta su un unico piano, garantendo comfort e praticità. L’ingresso si apre su un ampio salone doppio con camino, ambiente accogliente e luminoso che rappresenta il cuore della casa. A seguire, una cucina abitabile spaziosa e funzionale, due bagni ben distribuiti e tre grandi camere da letto, ideali per ospitare una famiglia o per chi desidera ampi spazi. Un balcone panoramico collega una delle camere e un bagno, offrendo una piacevole vista sulle colline circostanti.

Il piano inferiore ospita una rimessa molto ampia, vari locali di sgombero, un locale caldaia, un wc di servizio, un ripostiglio e una tavernetta accogliente, perfetta per momenti conviviali o per creare uno spazio hobby. Completano la proprietà un sottotetto e il grande terreno circostante, che assicura privacy e libertà di utilizzo, ideale per chi ama la natura o desidera realizzare un orto o una zona relax estiva.

La posizione panoramica, la generosità degli spazi e lo stato di conservazione rendono questa proprietà una soluzione ideale sia come prima casa che come seconda abitazione di campagna, perfetta per chi cerca serenità e contatto con la natura nel cuore del Monferrato.

Mostra tutto

Nelle vicinanze

Trasporto pubblico Trasporto pubblico
Calamandrana
Calamandrana
1,8 Km
Trasporto pubblico
1,8 Km
Ricariche auto elettriche Ricariche auto elettriche
BeCharge Strada Canelli
2,7 Km
San Marzano Oliveto SP6 | EnelX
2,9 Km
Farmacia Farmacia
Farmacia
2,2 Km
Farmacia San Marzano - Dr.Taddei Enrico
2,8 Km
Parafarmacia E' Qui
2,9 Km
Supermercati Supermercati
Il Gigante La Fornace
2,9 Km
Ristoranti Ristoranti
Ristorante Violetta
290 m
Agriturismo La Viranda
670 m
Del Belbo da Bardon
1,3 Km
La Corte
2,2 Km
The B
3,0 Km
Mostra tutto

Caratteristiche

Rif.:
61165398
Totale piani:
3
Box:
1
Balconi:
1
Camere da letto:
3
Arredamento:
Assente
Mostra tutto
Prezzo Prezzo
€ 269.000
Rata mutuo Rata mutuo
€ 1.257 / mese
Proponi il tuo prezzoProponi il tuo prezzo
Immobile valutato con T·Valuta

Classe Energetica

C
C
C
C
C
C
C
C
C
EP globale non rinnovabile:
129.70 kW h/m² anno
EP globale rinnovabile:
0.58 kW h/m² anno
EP invernale del fabbricato:
EP estiva del fabbricato:
Anno di costruzione:
1978
Riscaldamento:
Autonomo
Tipo impianto:
A radiatori
Tipo alimentazione:
Metano

Ti interessa visionare l'immobile?

Fissa un appuntamento  Fissa un appuntamento

Richiedi informazioni

Clicca su Leggi per aprire l'informativa
* Questi campi sono obbligatori

Calcola il tuo mutuo

Semplice e senza impegno
Anticipo

( % )
Mutuo

( % )

pochi semplici passi

inserisci i tuoi dati
Questionario completato
Grazie per aver richiesto un appuntamento senza impegno con un nostro Consulente del Credito e Assicurativo.

Hai inserito correttamente tutti i dati necessari e a breve riceverai una e-mail con un link da convalidare per inviare i tuoi dati.
Affiliato
Studio Monteverde Sas
Via Monteverde, 12 15011 Acqui Terme (AL)

Il nostro staff


  • Mauro Panebianco
    Affiliato

  • Rachele Caffa
    Coordinatrice

  • Andrea Luigi Lingeri
    Collaboratore
Via Monteverde, 12 15011 Acqui Terme (AL)
Zona: Acqui Terme e dintorni
Mostra su mappa
Orari: Dalle 9:00 alle 12:30, dalle 15:30 alle 19:30. Sabato chiusura alle 18:00
Affiliato
Studio Monteverde Sas
Via Monteverde, 12 15011 Acqui Terme (AL)

2026 Tecnocasa Franchising S.p.A. - P. IVA 08365160152 - Via Monte Bianco 60/A 20089 Rozzano (MI). Ogni agenzia ha un proprio titolare ed è autonoma. Privacy policy | Policy utilizzo | Cookie policy