Villa singola in vendita

Cassine, Via dei partigiani
€ 165.000
10 locali 10 locali
200 Mq 200 Mq
3 bagni 3 bagni

Villa singola in vendita

Cassine, Via dei partigiani

Descrizione annuncio

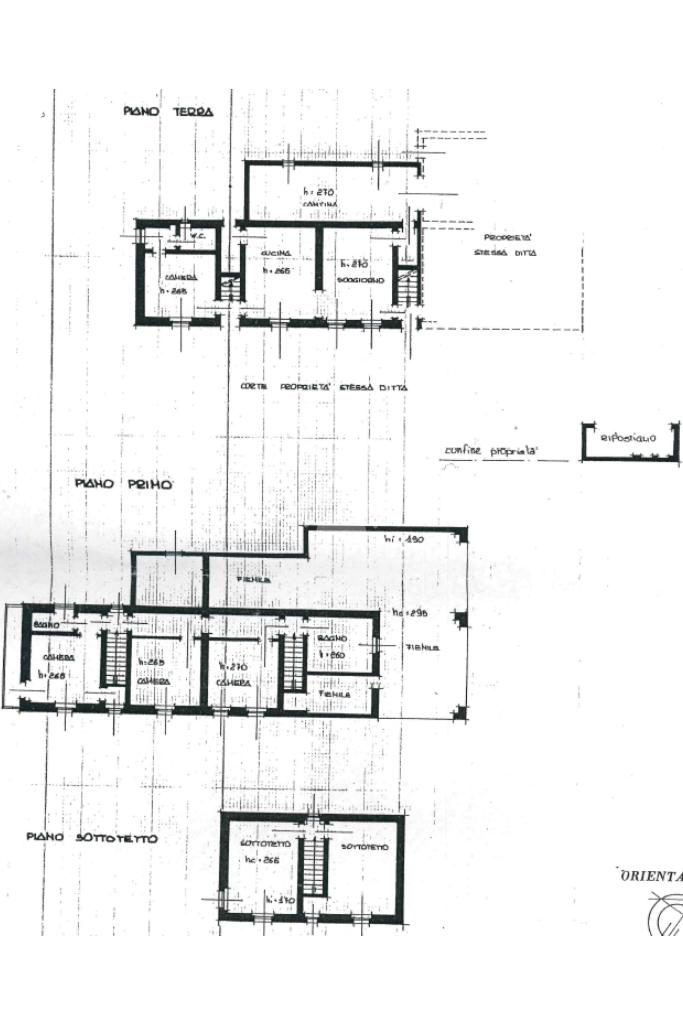
Nel comune di Cassine, proponiamo in vendita una villa singola di circa 200 mq.

Questa proprietà si sviluppa su più livelli, offrendo spazi ben distribuiti e funzionali: l'immobile è così composto: al piano terra troviamo ingresso su disimpegno, cucina abitabile, soggiorno con camino, una camera da letto con bagno; al piano primo troviamo 3 camere da letto, due bagni ed un ampio locale da utilizzare come soggiorno; al secondo due stanze che possono essere utilizzate come camere da letto o come ripostiglio.

All'esterno, un ampio giardino circonda la villa, ideale per momenti di relax all'aria aperta e attività all'aperto. La presenza di una legnaia aggiunge praticità per chi ama il calore del camino o della stufa a legna. La villa dispone di un garage, garantendo un comodo spazio per il parcheggio e la protezione del veicolo. Inoltre, una cantina offre ulteriore spazio per lo stoccaggio. L'immobile è subito abitabile, permettendo di trasferirsi senza necessità di interventi immediati.

Questa soluzione rappresenta un'opportunità per chi cerca una residenza spaziosa e funzionale in una zona tranquilla.

Mostra tutto

Nelle vicinanze

Trasporto pubblico Trasporto pubblico
Cassine
Cassine
410 m
Trasporto pubblico
210 m
Scuole Scuole
Scuola primaria e secondaria
660 m
Bar Bar
Bar Italia
470 m
Mostra tutto

Caratteristiche

Rif.:
61092493
Piano:
Su più livelli di 3
Totale piani:
3
Box:
1
Posti auto:
3
Balconi:
2
Mostra tutto
Prezzo Prezzo
€ 165.000
Rata mutuo Rata mutuo
€ 784 / mese
Spese annue Spese annue
€ 0
Proponi il tuo prezzoProponi il tuo prezzo

Classe Energetica

G
G
G
G
G
G
G
G
G
EP globale non rinnovabile:
422.93 kW h/m² anno
EP globale rinnovabile:
90.63 kW h/m² anno
EP invernale del fabbricato:
EP estiva del fabbricato:
Anno di costruzione:
1970
Riscaldamento:
Autonomo
Tipo impianto:
A radiatori
Tipo alimentazione:
Metano

Ti interessa visionare l'immobile?

Fissa un appuntamento  Fissa un appuntamento

Richiedi informazioni

Clicca su Leggi per aprire l'informativa
* Questi campi sono obbligatori

Calcola il tuo mutuo

Semplice e senza impegno
Anticipo

( % )
Mutuo

( % )

pochi semplici passi

inserisci i tuoi dati
Questionario completato
Grazie per aver richiesto un appuntamento senza impegno con un nostro Consulente del Credito e Assicurativo.

Hai inserito correttamente tutti i dati necessari e a breve riceverai una e-mail con un link da convalidare per inviare i tuoi dati.
Affiliato
Studio Monteverde Sas
Via Monteverde, 12 15011 Acqui Terme (AL)

Il nostro staff


  • Mauro Panebianco
    Affiliato

  • Riccardo Barbero
    Collaboratore

  • Rachele Caffa
    Coordinatrice

  • Andrea Luigi Lingeri
    Collaboratore
Via Monteverde, 12 15011 Acqui Terme (AL)
Zona: Acqui Terme e dintorni
Mostra su mappa
Orari: Dalle 9:00 alle 12:30, dalle 15:30 alle 19:30. Sabato chiusura alle 18:00
Affiliato
Studio Monteverde Sas
Via Monteverde, 12 15011 Acqui Terme (AL)

2026 Tecnocasa Franchising S.p.A. - P. IVA 08365160152 - Via Monte Bianco 60/A 20089 Rozzano (MI). Ogni agenzia ha un proprio titolare ed è autonoma. Privacy policy | Policy utilizzo | Cookie policy