Casa semindipendente in vendita

Castelnuovo Bormida, Via Airaldi
€ 18.000
Prezzo aggiornato
6 locali 6 locali
130 Mq 130 Mq
1 bagno 1 bagno

Casa semindipendente in vendita

Castelnuovo Bormida, Via Airaldi

Descrizione annuncio

Castelnuovo Bormida.

Proponiamo in vendita casa semindipente con giardino privato.

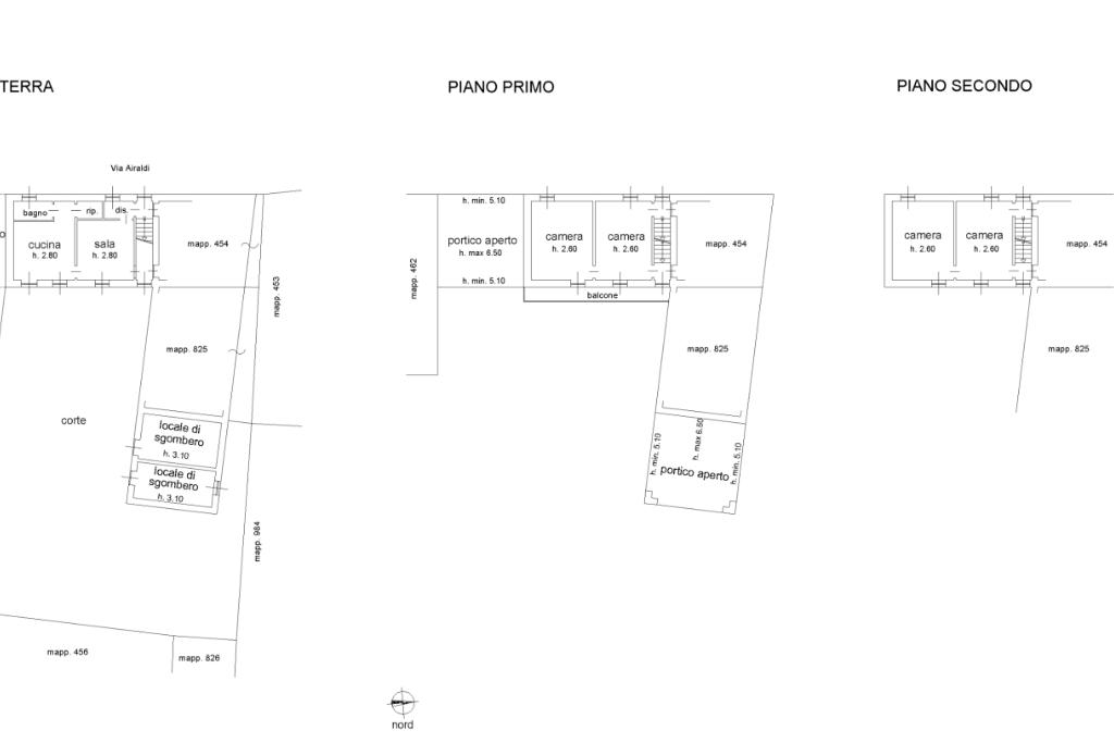
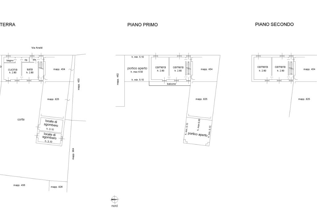
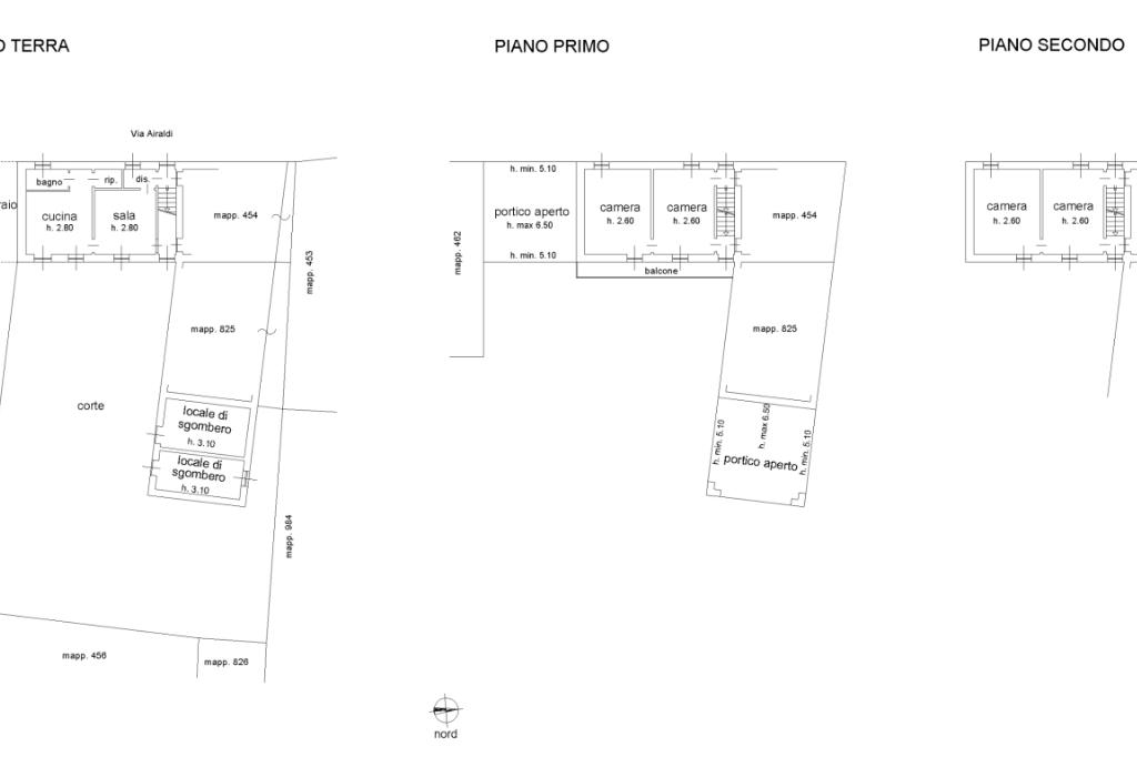
La casa è disposta su tre livelli, al piano terra troviamo cucina, salotto, bagno, ripostiglio; primo piano troviamo due camere da letto con balcone e al terzo piano altre due camere. Completa la proprietà un locale di sgombero su due livelli.

Mostra tutto

Nelle vicinanze

Trasporto pubblico Trasporto pubblico
Cassine
Cassine
1,5 Km
Trasporto pubblico
240 m
Scuole Scuole
Scuola primaria e secondaria
1,9 Km
Bar Bar
Bar Italia
2,0 Km
Mostra tutto

Caratteristiche

Rif.:
61148805
Piano:
3 di 3 (Piano su più livelli)
Box:
1
Posti auto:
1
Terrazzi:
1
Camere da letto:
4
Mostra tutto
Prezzo Prezzo
€ 18.000
Rata mutuo Rata mutuo
€ 86 / mese
Spese annue Spese annue
€ 0
Proponi il tuo prezzoProponi il tuo prezzo

Classe Energetica

F
F
F
F
F
F
F
F
F
EP globale non rinnovabile:
375.12 kW h/m² anno
EP invernale del fabbricato:
EP estiva del fabbricato:
Anno di costruzione:
1960
Riscaldamento:
Autonomo
Tipo impianto:
A radiatori
Tipo alimentazione:
Metano

Prezzo ridotto di €1 (10%%)

Ti interessa visionare l'immobile?

Fissa un appuntamento  Fissa un appuntamento

Richiedi informazioni

Clicca su Leggi per aprire l'informativa
* Questi campi sono obbligatori

Calcola il tuo mutuo

Semplice e senza impegno
Anticipo

( % )
Mutuo

( % )

pochi semplici passi

inserisci i tuoi dati
Questionario completato
Grazie per aver richiesto un appuntamento senza impegno con un nostro Consulente del Credito e Assicurativo.

Hai inserito correttamente tutti i dati necessari e a breve riceverai una e-mail con un link da convalidare per inviare i tuoi dati.
Affiliato
Studio Monteverde Sas
Via Monteverde, 12 15011 Acqui Terme (AL)

Il nostro staff


  • Mauro Panebianco
    Affiliato

  • Riccardo Barbero
    Collaboratore

  • Rachele Caffa
    Coordinatrice

  • Andrea Luigi Lingeri
    Collaboratore
Via Monteverde, 12 15011 Acqui Terme (AL)
Zona: Acqui Terme e dintorni
Mostra su mappa
Orari: Dalle 9:00 alle 12:30, dalle 15:30 alle 19:30. Sabato chiusura alle 18:00
Affiliato
Studio Monteverde Sas
Via Monteverde, 12 15011 Acqui Terme (AL)

2026 Tecnocasa Franchising S.p.A. - P. IVA 08365160152 - Via Monte Bianco 60/A 20089 Rozzano (MI). Ogni agenzia ha un proprio titolare ed è autonoma. Privacy policy | Policy utilizzo | Cookie policy