Casa indipendente in vendita

Cavatore, Località Valle Zani
€ 130.000
Prezzo aggiornato
8 locali 8 locali
178 Mq 178 Mq
1 bagno 1 bagno

Casa indipendente in vendita

Cavatore, Località Valle Zani

Descrizione annuncio

Proponiamo in vendita affascinante cascina in pietra circondata da terreni di proprietà situata nel comune di Cavatore a pochi minuti dalla città di Acqui Terme.

La struttura conserva tutto il fascino originario delle tipiche case in pietra, con dettagli autentici che la rendono perfetta per un intervento di ristrutturazione conservativa, ideale per valorizzarne il carattere rustico.

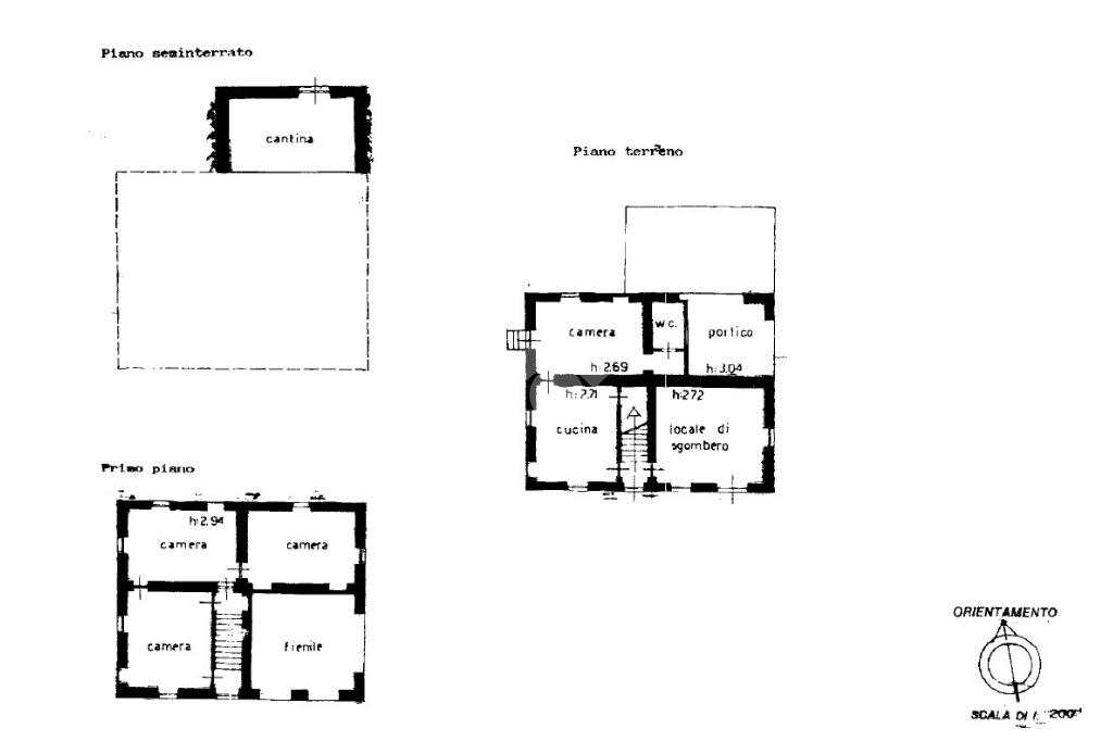
La cascina si sviluppa su due livelli:

Piano terra: cucina abitabile, una camera, un bagno, locale di sgombero e un portico.

Piano primo: tre camere da letto e il fienile.

Completano la proprietà una cantina adiacente alla casa e il sottotetto che può essere utilizzato per ricavare ulteriori camere e spazi utilizzabili.

L’immobile è circondato da circa 12.000 mq di terreno accorpato e dispone inoltre di ulteriori 58.000 mq di terreno distaccato, ideale per attività agricole, allevamento o per chi desidera ampi spazi verdi.

Interventi già effettuati:

- Tetto rifatto

- Soletta del fienile rinnovata

La proprietà è dotata di pozzo sorgivo e gode di una splendida vista aperta sulle colline circostanti, garantendo privacy e un’atmosfera rilassante.

Soluzione ideale come prima casa, casa vacanze o per realizzare un’attività ricettiva (B&B, agriturismo).

Mostra tutto

Nelle vicinanze

Trasporto pubblico Trasporto pubblico
Trasporto pubblico
3,0 Km
Ricariche auto elettriche Ricariche auto elettriche
Acqui Terme Acquedotto Romano | EnelX
2,3 Km
Lidl Acqui Terme
2,8 Km
Scuole Scuole
Istituto Comprensivo di Spigno Monferrato-Sede Melazzo
2,6 Km
Scuole
2,7 Km
Farmacia Farmacia
Farmacia Vecchie Terme del Dott. Margara Giovanni & C. Snc
2,2 Km
Parafarmacia Conad
2,6 Km
Supermercati Supermercati
Conad
2,6 Km
Lidl
2,7 Km
Ristoranti Ristoranti
Da Fausto
1,5 Km
Osteria La Rachele
1,7 Km
Cittubai
2,6 Km
Villa Scati
2,9 Km
Pullover
2,9 Km
Mostra tutto

Caratteristiche

Rif.:
61192135
Piano:
Terra con giardino di 2
Totale piani:
2
Box:
1
Camere da letto:
3
Arredamento:
Parziale
Mostra tutto
Prezzo Prezzo
€ 130.000
Rata mutuo Rata mutuo
€ 613 / mese
Proponi il tuo prezzoProponi il tuo prezzo

Classe Energetica

C
C
C
C
C
C
C
C
C
EP globale non rinnovabile:
198.65 kW h/m² anno
EP globale rinnovabile:
563.61 kW h/m² anno
EP invernale del fabbricato:
EP estiva del fabbricato:
Anno di costruzione:
1900
Riscaldamento:
Autonomo
Tipo impianto:
A stufa
Tipo alimentazione:
Altro

Prezzo ridotto di €1 (8%%)

Ti interessa visionare l'immobile?

Fissa un appuntamento  Fissa un appuntamento

Richiedi informazioni

Clicca su Leggi per aprire l'informativa
* Questi campi sono obbligatori

Calcola il tuo mutuo

Semplice e senza impegno
Anticipo

( % )
Mutuo

( % )

pochi semplici passi

inserisci i tuoi dati
Questionario completato
Grazie per aver richiesto un appuntamento senza impegno con un nostro Consulente del Credito e Assicurativo.

Hai inserito correttamente tutti i dati necessari e a breve riceverai una e-mail con un link da convalidare per inviare i tuoi dati.
Affiliato
Studio Monteverde Sas
Via Monteverde, 12 15011 Acqui Terme (AL)

Il nostro staff


  • Mauro Panebianco
    Affiliato

  • Riccardo Barbero
    Collaboratore

  • Rachele Caffa
    Coordinatrice

  • Andrea Luigi Lingeri
    Collaboratore
Via Monteverde, 12 15011 Acqui Terme (AL)
Zona: Acqui Terme e dintorni
Mostra su mappa
Orari: Dalle 9:00 alle 12:30, dalle 15:30 alle 19:30. Sabato chiusura alle 18:00
Affiliato
Studio Monteverde Sas
Via Monteverde, 12 15011 Acqui Terme (AL)

2026 Tecnocasa Franchising S.p.A. - P. IVA 08365160152 - Via Monte Bianco 60/A 20089 Rozzano (MI). Ogni agenzia ha un proprio titolare ed è autonoma. Privacy policy | Policy utilizzo | Cookie policy