Bifamiliare in vendita

Denice, Piani superiori - Piani Superiore
€ 300.000
8 locali 8 locali
350 Mq 350 Mq
2 bagni 2 bagni

Bifamiliare in vendita

Denice, Piani superiori - Piani Superiore

Descrizione annuncio

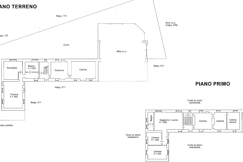
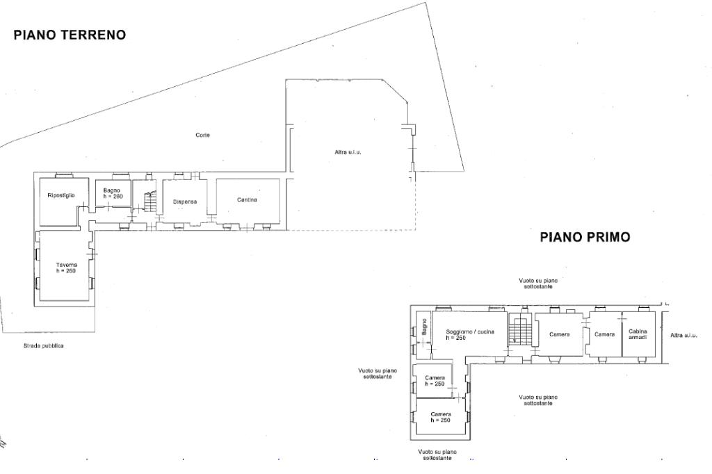
Nel comune di Denice, AL, nella tranquilla località di Piani Superiore, è disponibile una villa bifamiliare in vendita.

Questa proprietà completamente ristrutturata di recente (tetto, impianti elettrici ed idraulici) si estende su circa 350 mq distribuiti su più livelli. La villa è suddivisa in due appartamenti distinti, offrendo versatilità e spazio per diverse esigenze abitative: l'appartamento al piano terra, dotato di ingresso indipendente, offre un ampio salone open space con cucina abitabile, bagno completo e camera da letto; al primo piano troviamo un appartamento composto da: salone open space con cucina abitabile, due camere da legno e ampio bagno; sullo stesso piano è presente un unico ampio spazio attualmente utilizzato come camera da letto, si presta però come soluzione versatile.

La posizione garantisce un'ottima esposizione e una vista libera, permettendo di godere appieno della bellezza del paesaggio circostante.

Il giardino ampio è ideale per momenti di relax all'aperto o per attività all'aria aperta, inoltre è possibile installare una piscina interrata vicino al pozzo artesiano. Completano la proprietà una taverna al piano terra, con cucina e un altro locale, un deposito, una legnaia e un garage.

Il tetto è stato completamente rinnovato, assicurando sicurezza e comfort. Questa villa rappresenta un'opportunità unica per chi cerca una soluzione abitativa spaziosa e ben curata in una zona tranquilla.

Mostra tutto

Nelle vicinanze

Trasporto pubblico Trasporto pubblico
Montechiaro d'Acqui
Montechiaro d'Acqui
1,1 Km
Ricariche auto elettriche Ricariche auto elettriche
Montechiaro d'Acqui Europa | EnelX
1,3 Km
Scuole Scuole
Scuola Elementare G. Ungaretti
1,3 Km
Farmacia Farmacia
Visconti Adriano
1,2 Km
Ospedali Ospedali
Residenza "I Boschi"
1,5 Km
Supermercati Supermercati
Frutta e Verdura
1,2 Km
Negozi Negozi
Alimentari Cazzuli Elsa
1,2 Km
Alimentari Fratelli Vola
1,3 Km
Bar Bar
Bar "Della Stazione"
1,2 Km
Skube Bar
1,2 Km
Ristoranti Ristoranti
Ristorante Belvedere
320 m
Da Neta
1,2 Km
Pizzeria Vecchia Fornace
1,3 Km
Ristorante Albergo Margherita
1,3 Km
Mostra tutto

Caratteristiche

Rif.:
61146963
Piano:
2 di 2 (Piano su più livelli)
Box:
1
Posti auto:
3
Camere da letto:
4
Arredamento:
Completo
Mostra tutto
Prezzo Prezzo
€ 300.000
Rata mutuo Rata mutuo
€ 1.425 / mese
Spese annue Spese annue
€ 0
Proponi il tuo prezzoProponi il tuo prezzo

Classe Energetica

E
E
E
E
E
E
E
E
E
EP invernale del fabbricato:
EP estiva del fabbricato:
Anno di costruzione:
1960
Riscaldamento:
Autonomo
Tipo impianto:
A radiatori
Tipo alimentazione:
Metano

Ti interessa visionare l'immobile?

Fissa un appuntamento  Fissa un appuntamento

Richiedi informazioni

Clicca su Leggi per aprire l'informativa
* Questi campi sono obbligatori

Calcola il tuo mutuo

Semplice e senza impegno
Anticipo

( % )
Mutuo

( % )

pochi semplici passi

inserisci i tuoi dati
Questionario completato
Grazie per aver richiesto un appuntamento senza impegno con un nostro Consulente del Credito e Assicurativo.

Hai inserito correttamente tutti i dati necessari e a breve riceverai una e-mail con un link da convalidare per inviare i tuoi dati.
Affiliato
Studio Monteverde Sas
Via Monteverde, 12 15011 Acqui Terme (AL)

Il nostro staff


  • Mauro Panebianco
    Affiliato

  • Riccardo Barbero
    Collaboratore

  • Rachele Caffa
    Coordinatrice

  • Andrea Luigi Lingeri
    Collaboratore
Via Monteverde, 12 15011 Acqui Terme (AL)
Zona: Acqui Terme e dintorni
Mostra su mappa
Orari: Dalle 9:00 alle 12:30, dalle 15:30 alle 19:30. Sabato chiusura alle 18:00
Affiliato
Studio Monteverde Sas
Via Monteverde, 12 15011 Acqui Terme (AL)

2026 Tecnocasa Franchising S.p.A. - P. IVA 08365160152 - Via Monte Bianco 60/A 20089 Rozzano (MI). Ogni agenzia ha un proprio titolare ed è autonoma. Privacy policy | Policy utilizzo | Cookie policy